Pharmacy Design Floor Plans

16544code Jpg 1 000 604 Pixels Pharmacy Design Store Plan Layout Design

16544code Jpg 1 000 604 Pixels Pharmacy Design Store Plan Layout Design

Pharmacy Design Plans Pharmacies Floor Plans Pharmacy Design Retail Store Layout Retail Space Design

Pharmacy Design Plans Pharmacies Floor Plans Pharmacy Design Retail Store Layout Retail Space Design

Pharmacy Layout By Pharmacy Planning Solutions Supermarket Design Healthcare Interior Design Pharmacy Design

Pharmacy Layout By Pharmacy Planning Solutions Supermarket Design Healthcare Interior Design Pharmacy Design

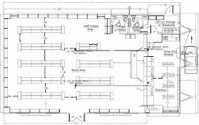
16542code Jpg 793 439 Pharmacy Design Floor Plans Pharmacy

16542code Jpg 793 439 Pharmacy Design Floor Plans Pharmacy

R C Smith Pharmacy Design Services Pharmacy Design Medical Office Design Office Floor Plan

R C Smith Pharmacy Design Services Pharmacy Design Medical Office Design Office Floor Plan

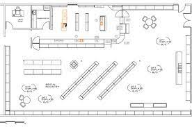
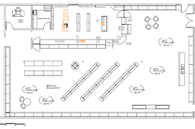
Pharmacy Gift Shop Floorplan Pharmacy Design Retail Space Design Retail Store Layout

Pharmacy Gift Shop Floorplan Pharmacy Design Retail Space Design Retail Store Layout

Pharmacy Gift Shop Floorplan Pharmacy Design Retail Space Design Retail Store Layout

Like marketing pharmacy design and merchandising are often overlooked in an independent pharmacy s business plan.

Pharmacy design floor plans. A combination of two or more of the above. Flooring restaurant kitchen floor plans. There are a number of considerations to weigh in the balance most importantly the building code and local bylaws.

Offering highly customized planning solutions we make sure our plans are in harmony with the space available and your business model. How to create a floor plan for a dental laboratory. Open flow floor plan.

Drive thru christmas lights beneconnoi. Oct 31 2019 we were presented with another company s layout that designated 1 000 sq. The goals of pharmacy layout and design are to increase customer satisfaction and reduce dispensing errors.

Posted on mar 24 2020. Gallery of o dispensing pharmacy ninkipen 13 gallery of caparrós and reina pharmacy mobil m 13 floor plan of shc in chia nan university pharmacy and science gallery of uniprix pharmacy and medical center jean de lessard. 404 page not found.

Pharmacy store pharmacy design store layout floor plan layout floor plans retail homes flooring how to plan. Whats people lookup in this blog. Blended or combination floor plan.

Layout plan simple retail. Traditional or grid floor plan. Retail store layout best room simple floor plan room.

Retail And Showroom Floor Plan Floor Plan With Dimensions Floor Plans Store Layout

Retail And Showroom Floor Plan Floor Plan With Dimensions Floor Plans Store Layout

Pharmacy Retail Layout Retail Store Layout Store Layout Pharmacy Design

Pharmacy Retail Layout Retail Store Layout Store Layout Pharmacy Design

Image Result For Pharmacy Layout Dekorasi Rumah Dekorasi Rumah

Image Result For Pharmacy Layout Dekorasi Rumah Dekorasi Rumah

Gallery Of Caparros And Reina Pharmacy Mobil M 13 Pharmacy Design Supermarket Design Supermarket Design Interior

Gallery Of Caparros And Reina Pharmacy Mobil M 13 Pharmacy Design Supermarket Design Supermarket Design Interior

Pharmacy Design Plans Pharmacies Floor Plans Pharmacy Design Floor Plans Pharmacy

Pharmacy Design Plans Pharmacies Floor Plans Pharmacy Design Floor Plans Pharmacy

Our Pharmacy Planning Consultant Works On Your Behalf With All Parties Involved From The Building Design To The Instal Pharmacy Design Pharmacy Building Design

Our Pharmacy Planning Consultant Works On Your Behalf With All Parties Involved From The Building Design To The Instal Pharmacy Design Pharmacy Building Design

Image Result For Supermarket Pharmacy Floor Plan Pharmacy Design Store Plan Layout Design

Image Result For Supermarket Pharmacy Floor Plan Pharmacy Design Store Plan Layout Design

Pharmacy In Omori Mamm Design Pharmacy Design Pharmacy Design

Pharmacy In Omori Mamm Design Pharmacy Design Pharmacy Design

Free Sketchup 3d Model Modern Pharmacy How To Design A Modern Pharmacy 3d Models Sketchup Shelving Inter Store Design Interior Pharmacy Design Store Layout

Free Sketchup 3d Model Modern Pharmacy How To Design A Modern Pharmacy 3d Models Sketchup Shelving Inter Store Design Interior Pharmacy Design Store Layout

Pharmacy Design Plans Pharmacies Floor Plans Pharmacy Design Floor Plans How To Plan

Pharmacy Design Plans Pharmacies Floor Plans Pharmacy Design Floor Plans How To Plan

Gallery Of Uniprix Pharmacy And Medical Center Jean De Lessard Designers Creatifs 15 Music Store Design Design Supermarket Design

Gallery Of Uniprix Pharmacy And Medical Center Jean De Lessard Designers Creatifs 15 Music Store Design Design Supermarket Design

Gallery Of Campos Pharmacy E 348 Arquitectura 36 Pharmacy Design Healthcare Architecture Pharmacy

Gallery Of Campos Pharmacy E 348 Arquitectura 36 Pharmacy Design Healthcare Architecture Pharmacy

Looking For A New Pharmacy Store Layout We Are Here Inquire Now Visit Http Pharmacyplanningsolutions Com Servi Store Layout Pharmacy Design Pharmacy Store

Looking For A New Pharmacy Store Layout We Are Here Inquire Now Visit Http Pharmacyplanningsolutions Com Servi Store Layout Pharmacy Design Pharmacy Store

Convenience Store Layout Store Layout Grocery Store Design Retail Store Layout

Convenience Store Layout Store Layout Grocery Store Design Retail Store Layout

Source : pinterest.com